賃マンション 賃料 75,000円
JR武蔵野線
東川口 徒歩18分
☆分譲賃貸です。 ☆近隣駐車場空き有り
|

※図面と現況が異なる場合は、現況を優先させて頂きます。 |
| 物件種目 |
賃マンション |
| 最寄駅 |
東川口 |
| 間取タイプ |
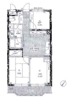
2SDK |
|
| 賃貸条件 |
賃料75,000円 |
礼金1ヶ月・敷金1ヶ月・保証金なし |
| 物件所在地 |
川口市東川口5丁目 |
| 交通 |
JR武蔵野線
東川口 徒歩18分 |
| 建物 |
| 建物名 |
|
|
| 構造・規模 |
|
RC5階建/3階部分 |
| 使用部分面積 |
|
49.68u |
| 間取内訳 |
|
和6 洋5.6 S3.8 |
|
| 築年月 |
1990年6月 | チェックポイント! 法人契約不可、B・T別、洗面所、収納スペース、シューズボックス、室内洗濯機置場、都市ガス、バルコニー、エレベーター
 |
| 契約期間 |
2年 |
| 管理費等 |
なし |
| 駐車場 |
近有 7,000円/月 |
| 現況 |
空室 |
| 入居可能時期 |
相談 |
| 本体設備 |
|
| 各戸設備 |
B・T別、洗面所、収納スペース、シューズボックス、室内洗濯機置場、都市ガス、バルコニー、エレベーター |
| 保険等 |
要2年 |
| 備考 |
保険加入必須 18,000円(例) 退去時ルームクリーニング費用:40,000円
賃貸保証:加入要 賃料等合計の30% 利用駅1:埼玉高速鉄道 東川口 徒歩16分 利用駅2:埼玉高速鉄道 浦和美園 徒歩29分 |
| 物件番号 |
69840107057 |
| 地図 |
|
|

|