 |

・1月ご案内分
地元業者ですから、地主さんより直接依頼されている物件が、この他にも多数ございます。
また、東川口(戸塚地区)はもちろんのこと、浦和美園方面の物件もご紹介できます。
駅前ですから、ぜひ一度お気軽にご来店下さい。
|
賃店舗・事務所等 賃料 19.80万円
JR武蔵野線 東川口 徒歩7分
☆1F西側 ☆店舗・事務所等 好立地! |

※図面と現況が異なる場合は、現況を優先させて頂きます。 |
| 物件種目 |
貸店舗・事務所等 |
| 最寄駅 |
東川口 |
| 間取タイプ |
|
|
| 賃貸条件 |
賃料19.80万円 |
礼金1ヶ月・敷金2ヶ月・保証金なし |
| 物件所在地 |
川口市戸塚2丁目 |
| 交通 |
JR武蔵野線 東川口 徒歩7分 |
| 建物 |
| 建物名 |
|
大熊店舗 西側 |
| 構造・規模 |
|
鉄骨2階建/1階部分 |
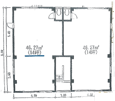
| 使用部分面積 |
|
46.27u |
| 間取内訳 |
|
|
|
| 築年月 |
1990年10月 |
チェックポイント! 飲食店不可、専用部分にトイレあり
 |
| 契約期間 |
3年 |
| 管理費等 |
なし 共益費なし |
| 駐車場 |
なし |
| 現況 |
空 |
| 引渡可能時期 |
即時 |
| 本体設備 |
|
| 各戸設備 |
専用部分にトイレあり |
| 保険等 |
|
| 備考 |
短期解約(3年以内)は違約金1ヶ月+税 火災保険加入必須 退去時原状回復 壁・天井のクロス張替え、床のCF張替え 要 賃貸保証:加入要 賃料等総額の120% |
| 物件番号 |
69683721061 |
| 地図 |
|
|

|
 |
|
住所 |
|
〒333-0801 埼玉県川口市東川口2丁目1−3 |
| 営業時間 |
|
09:00〜18:00 |
| 休業日 |
|
木曜日、水曜日 |
| アクセス |
|
JR武蔵野線・SR埼玉高速鉄道線東川口駅前 |
|
|
|
|
| Copyright ©
yukeisanko. All rights reserved. |